Clouds9-10°C
房产/房屋出售
东伦敦4区学区房 投资、自住兼宜
£285000.00
51
2026-03-10
2026-03-10
基本信息
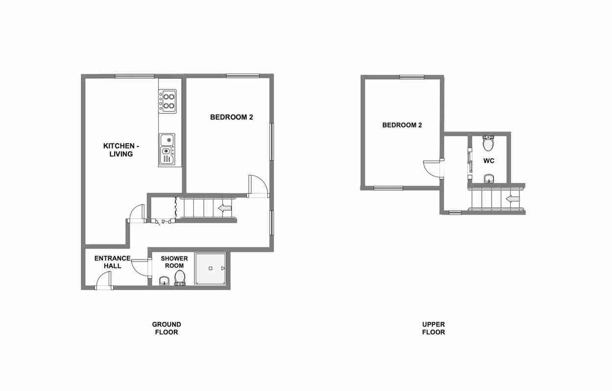
房屋地址:
地图查看
性质:
房源类别:
建筑面积:
卧室数量:
联系人:
电话:
详情
东伦敦4区学区房 投资、自住兼宜
位于伦敦地铁中央沿线公认的「房价凹陷区」:IG6
步行8分钟可达Barkingside地铁站,30 分钟内抵达金融城(Liverpool Street)
属男子文法学校 Ilford County High School学区,吸引重视教育的亚裔家庭
全屋已翻新,免300K,即买即住/租,无整修等待期。
意者欢迎致电询问细节,不回WhatsApp讯息
位于伦敦地铁中央沿线公认的「房价凹陷区」:IG6
步行8分钟可达Barkingside地铁站,30 分钟内抵达金融城(Liverpool Street)
属男子文法学校 Ilford County High School学区,吸引重视教育的亚裔家庭
全屋已翻新,免300K,即买即住/租,无整修等待期。
意者欢迎致电询问细节,不回WhatsApp讯息







本帖更新于:2026-03-10
用户点评
防骗提示1.请勿轻易泄漏私人账户信息2.请勿交纳以各种理由收取的费用3.请勿抵押重要证件原件4.警惕无具体地址、仅以QQ联系的招聘
手机用户35840
加入英鸟: 63 天热门资讯
英鸟网发布信息规范(20250624更新)
英国政府发钱请离难民? 每家最多发4万英镑
炉头维修 清洁风机 煤气证书 厨房设计
英国移民政策重磅更新!永居改10年或追溯
英国油价疯涨?近百辆车排队抢油!
海运集运28元/kg 空运集运54元/kg
英国油价、物价或全线上涨!
特朗普斥责斯塔默不支持袭击伊朗
全球学生公寓 优质房源
英国恐怖威胁等级或升级!
伦敦华人老板的饺子厂 ,因卫生太差被罚7.8万镑!
广告位招租中
奖金发放通知!马年新春活动正式结束!
英镑汇率三连跌!今日最低跌至9.25
分类信息推荐
·
请熟手炒饭面
请熟手炒饭面
·
离伦敦一小时请炒饭面
离伦敦一小时请炒饭面
·
请油包
请油包
·
伦敦面馆招聘
伦敦面馆招聘
·
外卖店招聘
外卖店招聘
·
请熟手炒餐
请熟手炒餐
·
招*炒饭面
招*炒饭面
·
招聘熟手炒饭面兼油包
招聘熟手炒饭面兼油包
·
炒饭面
炒饭面
·
中餐外卖招全职看台
中餐外卖招全职看台


